Seleccionar página

CGS

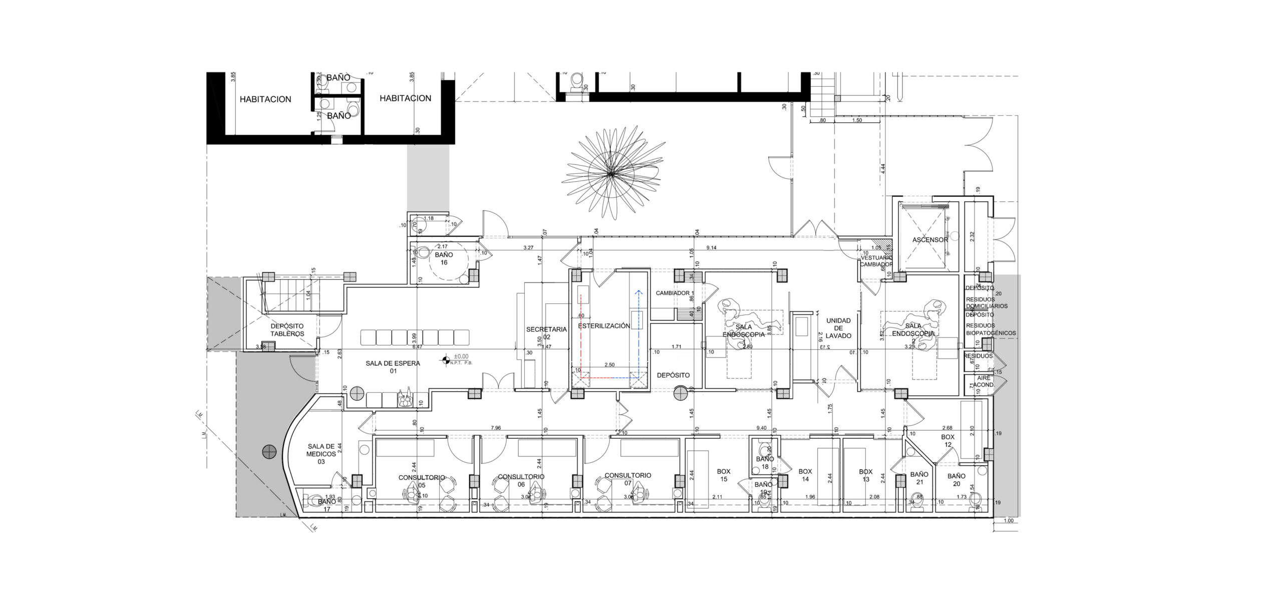
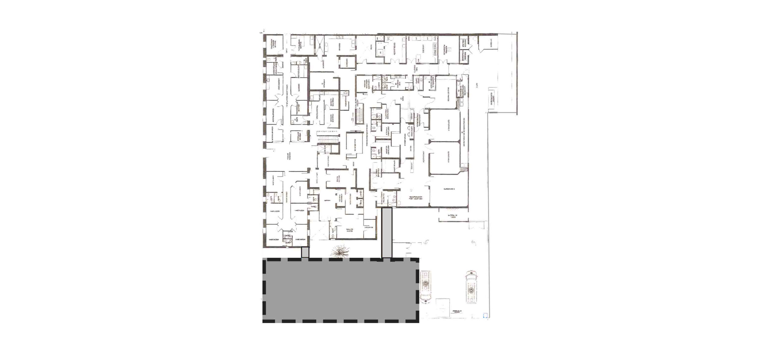
Tipo de obra: Ampliación Clínica García Salinas, nuevo Centro de Gastroenterología y sector de internación.

Año de proyecto: 2014

Año de obra y finalización: 2015– 2019 (ejecutada en etapas)

Superficie edificada:  746 m2

Ubicación: 25 de Mayo y Roca, Trenque Lauquen

Proyecto y Dirección de Obra: Carlos Pellegrini, Pedro L.F. Llamedo

Asesor estructural: Gabriel Hernando