Seleccionar página

CLM

Tipo de obra: Reforma y ampliación colegio primario y secunadrio

Año de proyecto: 2022

Año de obra y finalización: 2023

Superficie edificada: 950 m2

Ubicación: Guardia Nacional de Junín, esquina San Martín, Trenque Lauquen.

Proyecto y Dirección de Obra:  Pedro Llamedo, Pedro L.F. Llamedo

Asesor estructural: Gabriel Hernando

 

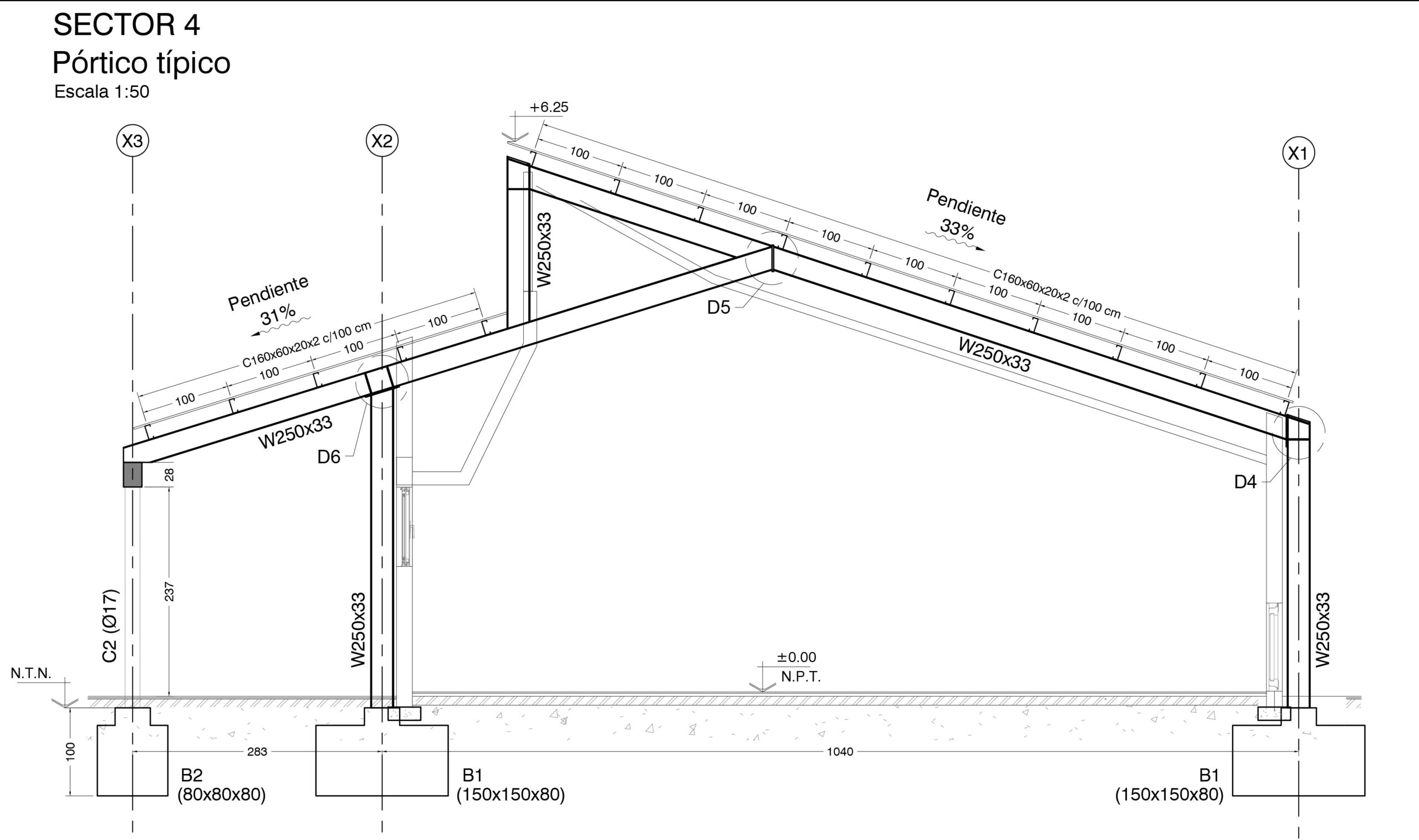
El sábado 30 de Octubre de 2021 se cayó un sector de la cubierta de uno de los pabellones del Colegio, el de Primaria. La cubierta de estructura de madera afectada por insectos, no resistió e hizo que fuera necesario la mudanza del colegio para desmantelar el resto, salvo los muros que quedaron en pié. Con un equipo de ex alumnos arquitectos elaboramos el Anteproyecto que decidió mantener y prolongar los pabellones a partir de una nueva estructura metálica de cubierta superpuesta a los muros existentes.
Se aumentaron el tamaño de las aulas para funcionar en situaciones de pandemia, se rehicieron todas las instalaciones y se amplió el equipamiento en aulas y salas comunes como al aula de música y de arte, cuyos muros fueron recubiertos con maderas recuperadas de la vieja cubierta.