Seleccionar página

LAAG

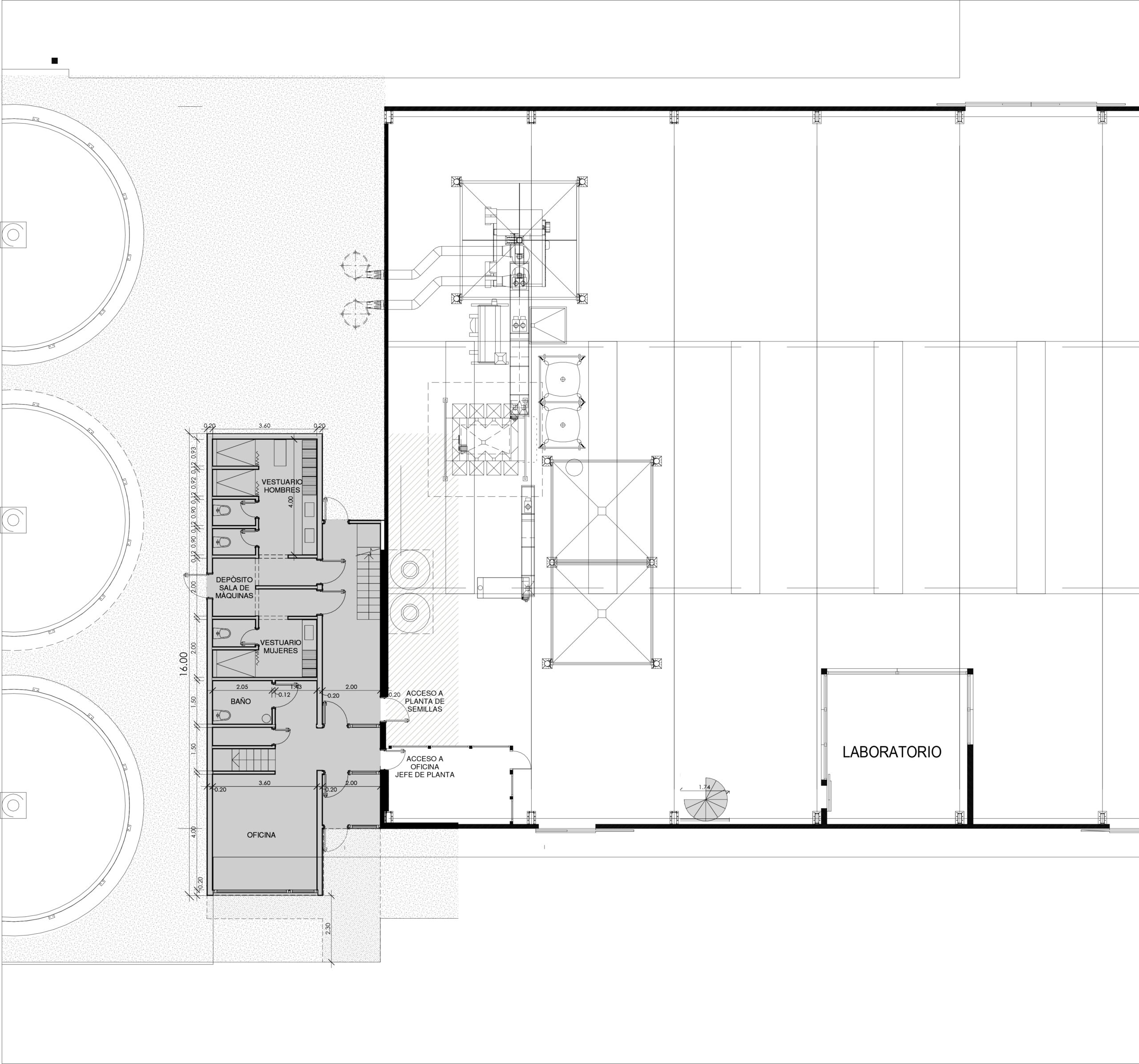
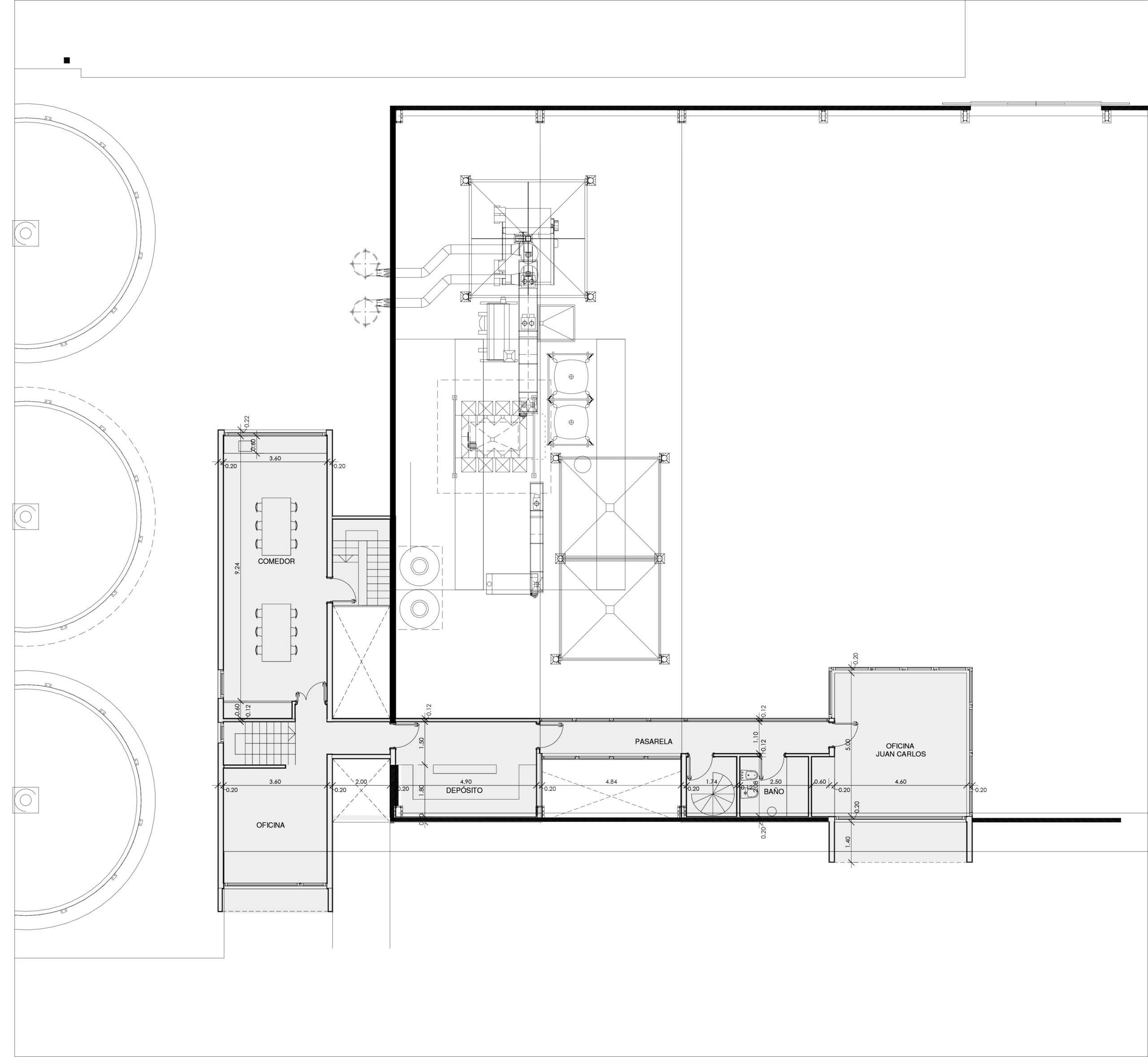
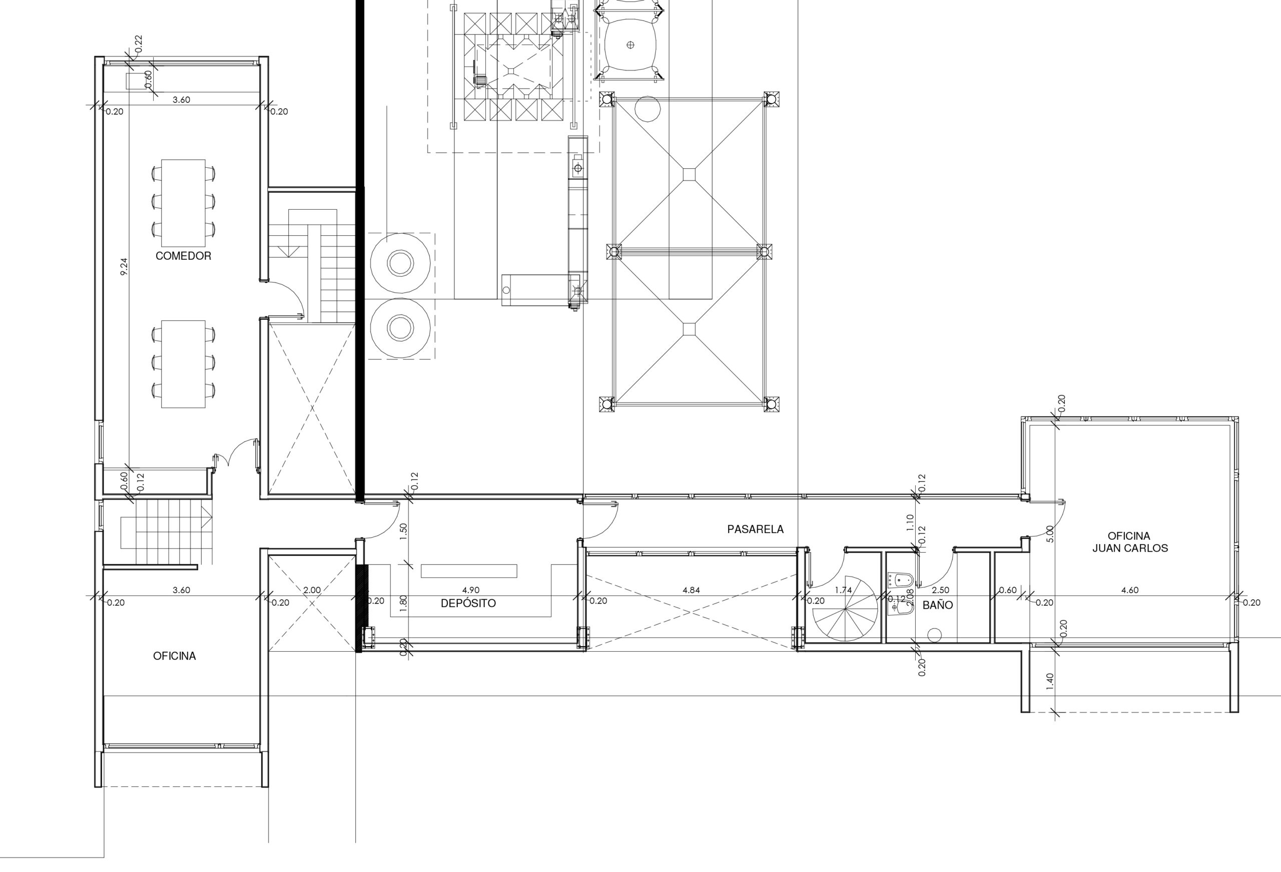
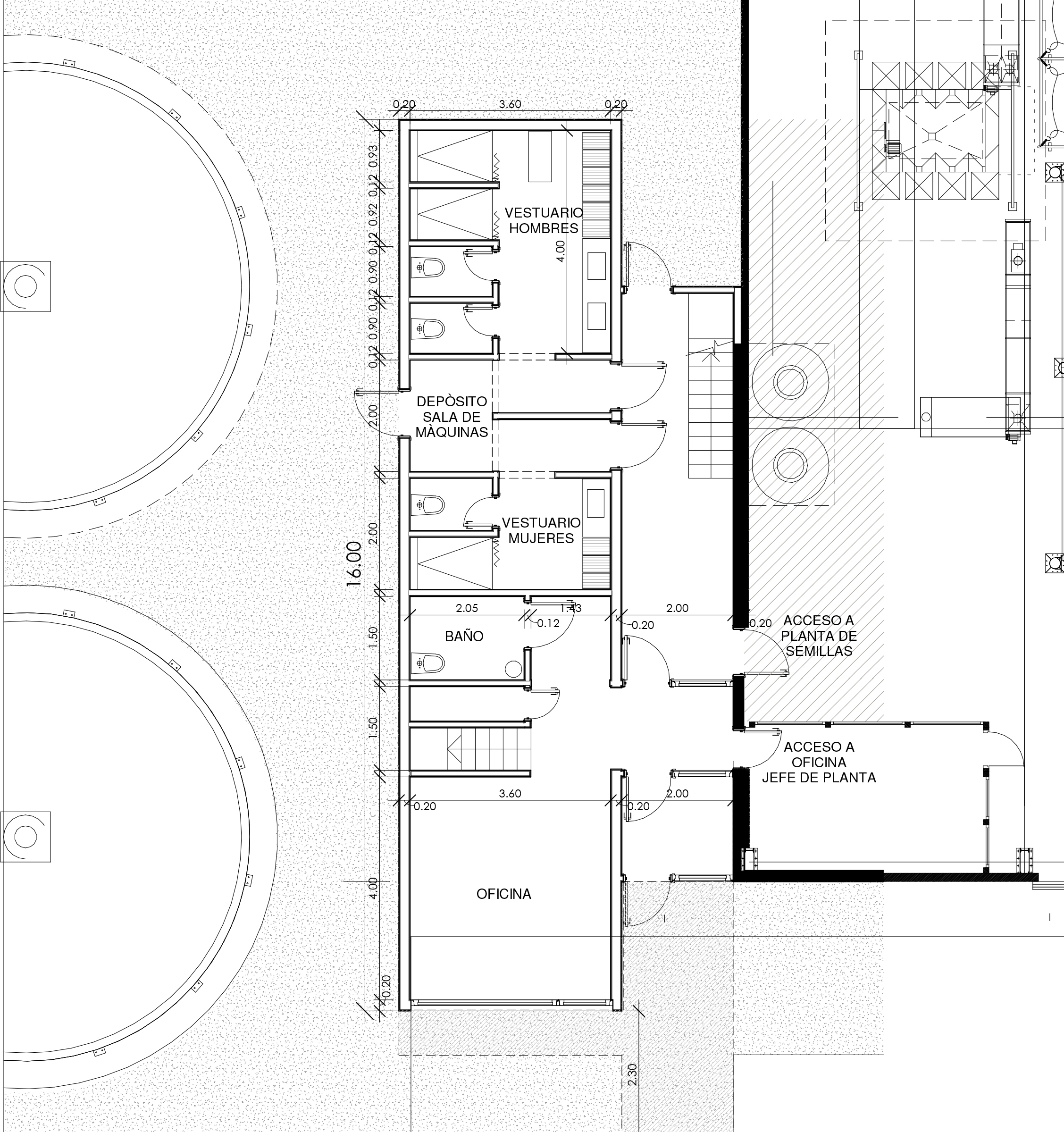
Tipo de proyecto: Nuevas oficinas, vestuarios y comedor dentro de fábrica existente.

Año de proyecto: 2021

Superficie intervención: 320 m2

Ubicación: Ruta 5 km 444,4, Trenque Lauquen.

Anteproyecto: Carlos Pellegrini, Pedro L.F. Llamedo