Seleccionar página

POVC

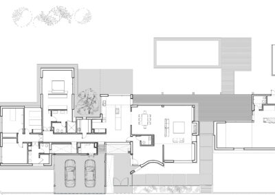
Tipo de obra: Vivienda unifamiliar

Año de proyecto: 2017

Año de obra y finalización: 2017-2020

Superficie edificada:  499 m2

Ubicación: Sargento Cabral y Regimiento 2 de Caballería, Tres Lomas

Proyecto y Dirección de Obra: Carlos Pellegrini, Pedro L.F. Llamedo

Asesor estructural: Rubén Planas