Seleccionar página

RJLC

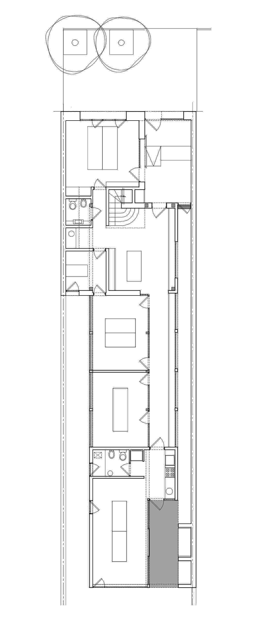
Tipo de obra: Oficinas

Año de proyecto: 2016

Año de obra y finalización: 2017

Superficie edificada: 250 m2

Ubicación: Roca Nº 342, Trenque Lauquen.

Proyecto y Dirección de Obra: Carlos Pellegrini, Pedro L.F. Llamedo

Asesor estructural: Rubén Planas